
Meeting & events
Seven spaces offering different experiences
Our rooms in our seminar hotel in Zurich can be selected and kitted out to meet your needs. You are sure to find the right space for your event, conference or training course here. We would be more than happy to advise you and prepare everything for you.
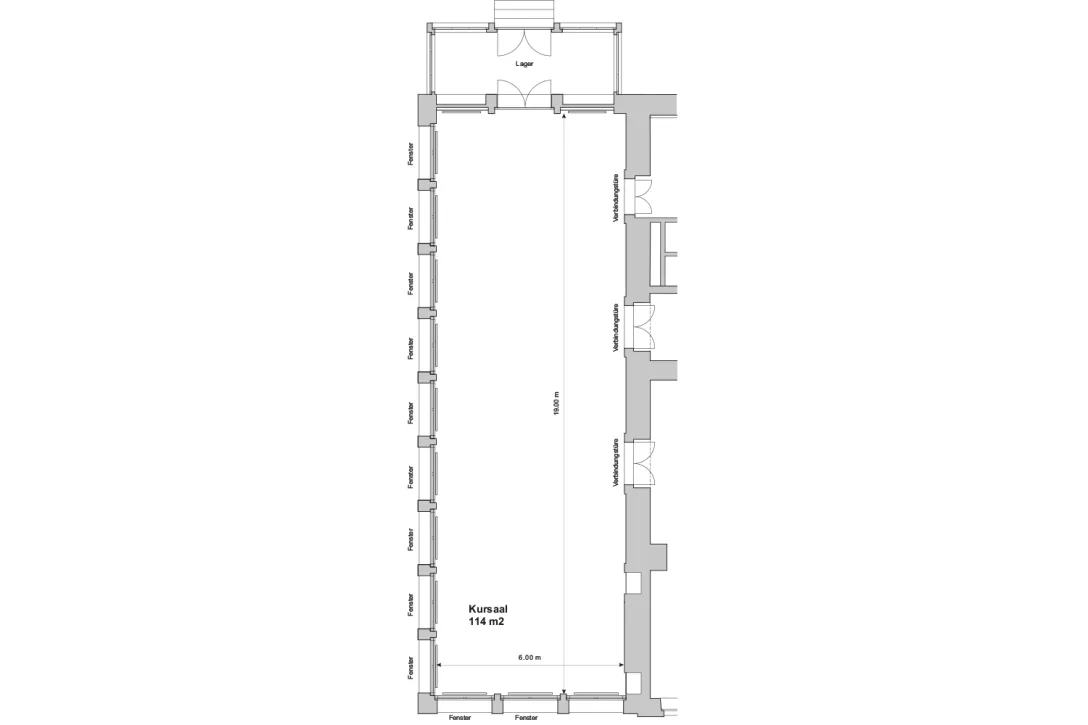
Kursaal 1
Venue capacity and size
Area: 114m2square meters
/
Capacity:
from
40
to
120
participants
Kursaal 1, in its Art Nouveau style, has the wow factor with its extraordinary ceiling height and glazed façade. This brightly lit room offers space for up to 120 people and can be adapted to the size of your event depending on the seating arrangement.





Kursaal 2
Venue capacity and size
Area: 84 m2square meters
/
Capacity:
from
20
to
70
participants
Kursaal 2 offers an entrancing historical atmosphere and unique views of the city, surrounding mountains and Lake Zurich. Accessible from Kursaal 1 via a connecting door, the two rooms can be used in combination.




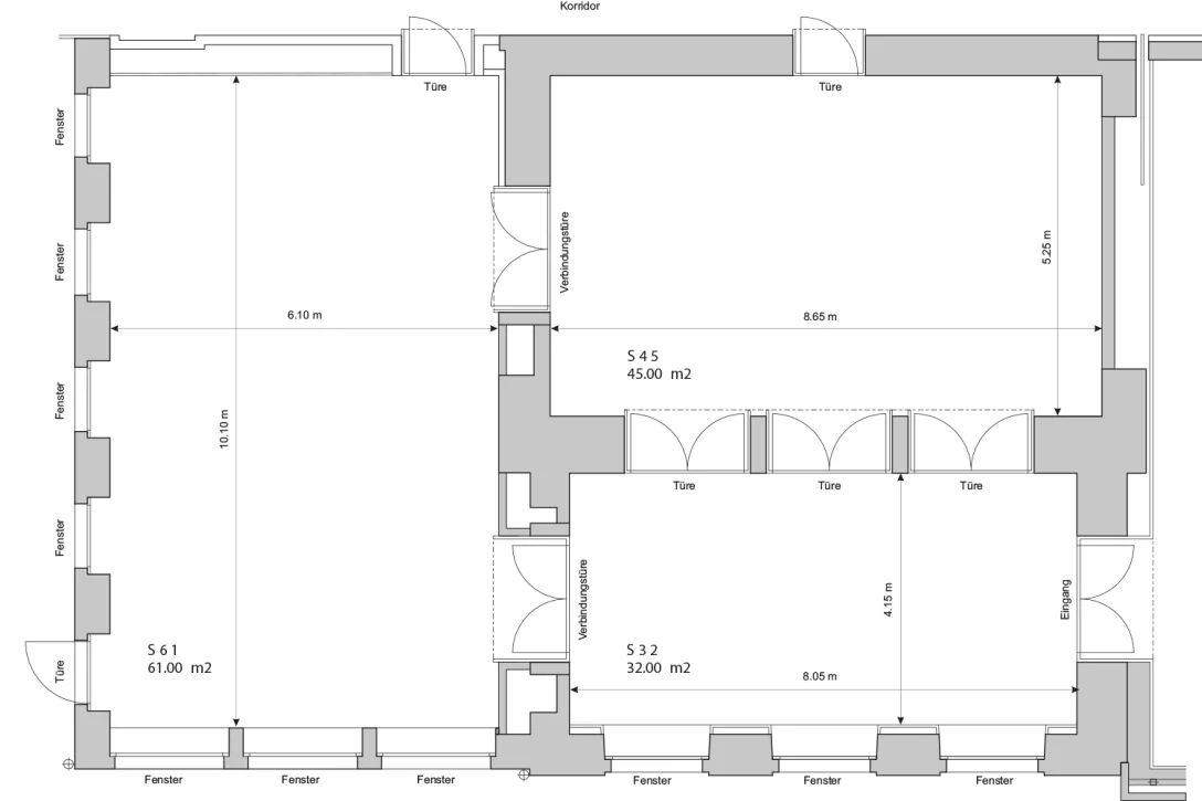
Zürichberg 1
Venue capacity and size
Area: 32m2square meters
/
Capacity:
from
10
to
20
participants
Small but perfectly formed, and very well equipped – Zürichberg 1 can be used by itself for smaller groups or in combination with the other rooms. From here, guests can also take in the view of Lake Zurich.



Zürichberg 2
Venue capacity and size
Area: 45m2square meters
/
Capacity:
from
14
to
40
participants
Zürichberg 2 can be used by itself or in combination with the other Zürichberg rooms. It is particularly well suited to events that require a degree of flexibility or an especially large amount of space.




Zürichberg 3
Venue capacity and size
Area: 61m2square meters
/
Capacity:
from
24
to
60
participants
Zürichberg 3 is perfect for smaller meetings and celebrations. It offers direct access to the outdoor terrace as well as a connecting door to Zürichberg 2.




Zürichberg 1/2
Venue capacity and size
Area: 77m2square meters
/
Capacity:
from
14
to
20
participants
Zürichberg 1 and Zürichberg 2 can be used in combination with each other, offering space for flexible group work.



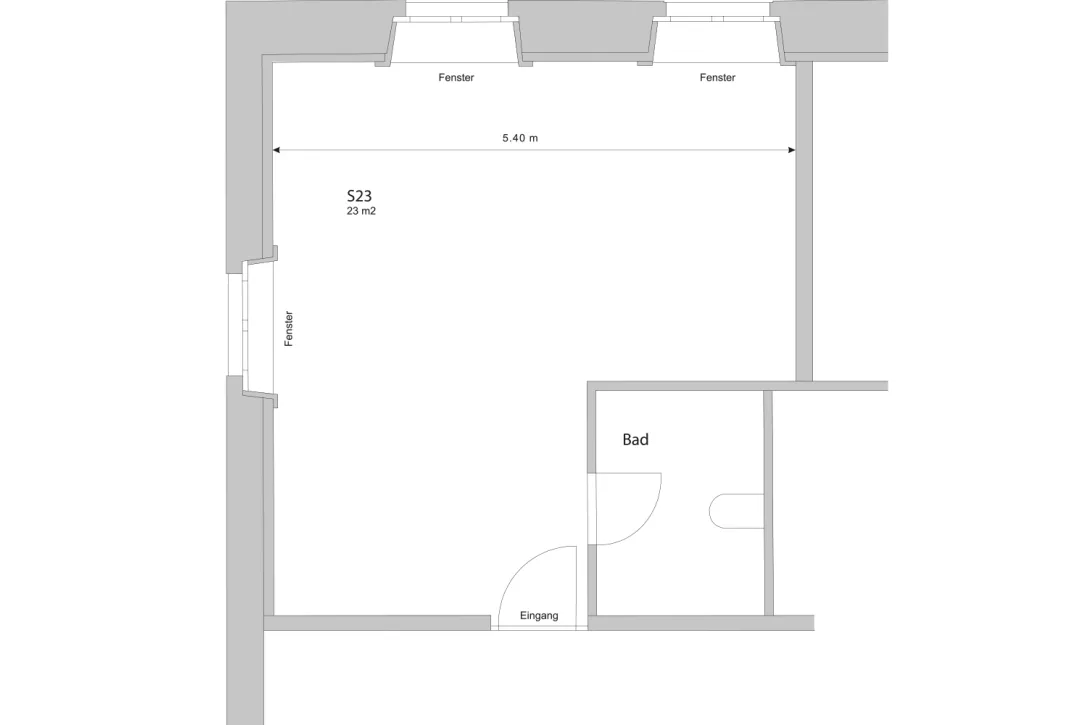
Raum 112
Venue capacity and size
Area: 23 m2square meters
/
Capacity:
to
6
participants
Thanks to its compact size, Room 112 is perfect for small groups of up to six people. Direct access to the Kursaal terrace means that you can also take your event outside if you wish.


Raumname | Parlament | Konzert | U-Form | Blocktisch | Reihe | Details |
---|---|---|---|---|---|---|
Kursaal 1 | 50 | 120 | 40 | 40 | 80 | Details zu Kursaal 1 ansehen |
Kursaal 2 | 40 | 70 | 20 | 0 | 40 | Details zu Kursaal 2 ansehen |
Zürichberg 1 | 10 | 20 | 0 | 14 | 14 | Details zu Zürichberg 1 ansehen |
Zürichberg 2 | 20 | 40 | 14 | 20 | 0 | Details zu Zürichberg 2 ansehen |
Zürichberg 3 | 30 | 60 | 24 | 25 | 32 | Details zu Zürichberg 3 ansehen |
Zürichberg 1/2 | 20 | 0 | 0 | 14 | 0 | Details zu Zürichberg 1/2 ansehen |
Raum 112 | 0 | 0 | 0 | 6 | 6 | Details zu Raum 112 ansehen |