Meeting & Events
Ihr Anlass im Kronesaal
Der Kronesaal lässt sich vielseitig unterteilen und wirkt dank einer breiten Fensterfront hell und einladend. Das moderne Design wird mit historischen Elementen ergänzt. Die technische Ausstattung und vielseitige Möglichkeiten für kulinarische Köstlichkeiten lassen keine Wünsche offen.
Kronesaal
Kapazität und Grösse des Veranstaltungsortes
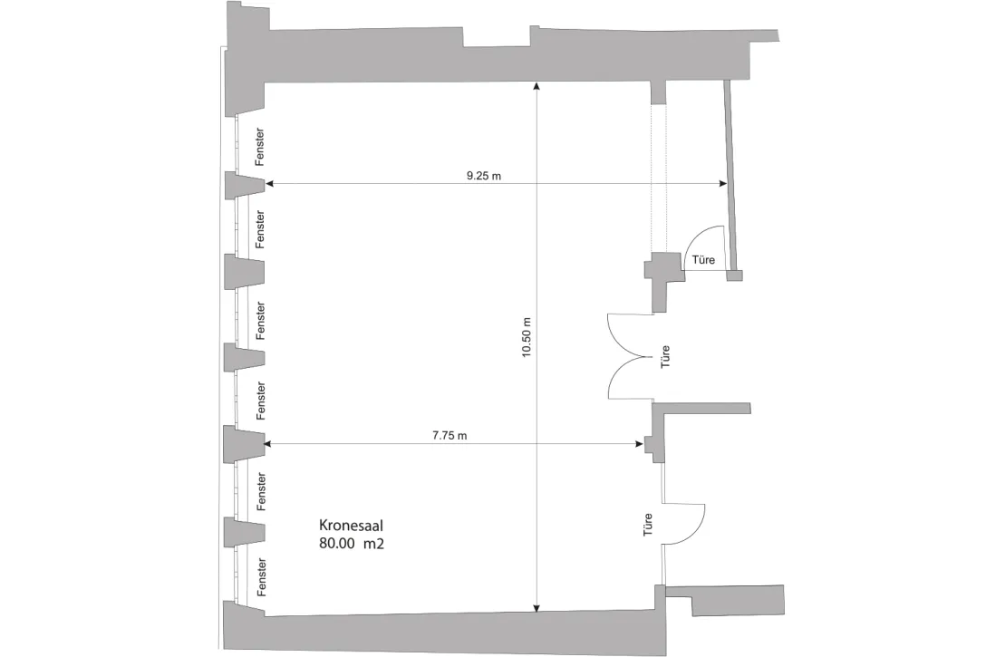
Fläche: 80m2Quadratmeter
/
max. Kapazität:
Von
20
bis
60
Teilnehmende
Der grosse Kronesaal eignet sich als historischer Festsaal für stilvolle Bankette genauso wie als edler Meetingraum. Die technische Ausrüstung umfasst einen fix installierten Beamer sowie eine Leinwand. Der grosszügige Raum lässt sich flexibel in zwei kleinere Räume unterteilen.
Kronesaal Medium
Kapazität und Grösse des Veranstaltungsortes
Fläche: 50m2Quadratmeter
/
max. Kapazität:
Von
12
bis
30
Teilnehmende
Für Meetings oder Workshops im mittleren Rahmen kann der Kronesaal entsprechend verkleinert werden. Ein fix installierter Beamer sowie eine Leinwand gehören zur Standardausstattung und sind in der Raummiete inbegriffen.
Kronesaal Small
Kapazität und Grösse des Veranstaltungsortes
Fläche: 25m2Quadratmeter
/
max. Kapazität:
Von
10
bis
12
Teilnehmende
Für kleinere Sitzungen oder Besprechungen sowie Gruppenarbeiten ergänzend zu Ihrem Anlass, ist der kleine Kronesaal ideal geeignet. Er ist dem Kronesaal Medium angeschlossen und über ihn zugänglich.
| Raumname | Parlament | Konzert | U-Form | Blocktisch | Reihe | Details |
|---|---|---|---|---|---|---|
| Kronesaal | 35 | 60 | 24 | 20 | 50 | Details zu Kronesaal ansehen |
| Kronesaal Medium | 20 | 30 | 12 | 15 | 15 | Details zu Kronesaal Medium ansehen |
| Kronesaal Small | 0 | 12 | 0 | 10 | 0 | Details zu Kronesaal Small ansehen |